コンテンツにスキップします

Rental Studio

レンタルスタジオ

本格ヨガスタジオをどなたでもご利用いただけます。
ヨガはもちろん、各種教室やワークショップ、撮影などにお気軽にご利用ください。

Practice渋谷

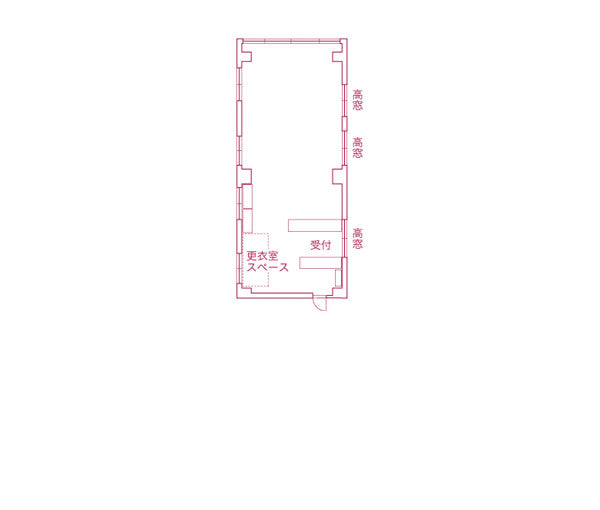
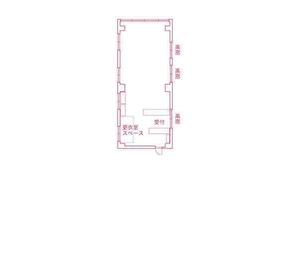
海外のヨガスタジオを思わせるシンプルなTOKYOYOGA渋谷スタジオ

壁は天然素材の珪藻土、床はフローリング、ヨガマット22枚配置可能

渋谷駅から徒歩3~4分の好立地

81平方メートルのフロアに70平方メートル程度のスタジオスペース。 更衣室スペースのカーテンをあければさらにスペースが広がります。白壁のため撮影に最適です。壁は天然素材の珪藻土。湿気に強く空気を汚しません。

※ヨガマット22枚前後を配置可能です。
※靴を履いてのご利用はフロアを傷めるためご利用いただけません。
※裸足や靴下でのご利用をお願いいたします。

所在地:
〒150-0041
東京都渋谷区神南1-12-16 和光ビル4B
>>>Google Map

ーご利用料金

平日 6,600円/時間 土日祝 7,700円/時間

※搬入~退出までの2時間以上からのご利用になります。
※月極 / 長期(一年単位)でお申込みいただくとお得になります。 詳しくはお問い合せください。
※料金は税込みです。

Practice渋谷

月~金 
2時間 13,200円
3時間 19,800円
4時間 26,400円
6時間 27,500円

土日祝 
2時間 15,400円
3時間 23,100円
4時間 30,800円
6時間 33,000円

備品

ヨガマット 無料
ボルスター、ブロック、ヨガベルト、ブランケット 無料

※数に限りがありますので、ご予約時にご確認ください。

ーご予約について

空き時間のご確認、ご予約は下記リンク先よりお願いいたします。

【スケジュール確認方法】
リンク先ページ上部からレンタルスペースをお選びいただき、次のプログラム選択でご希望時間数(例:120分、3時間など)から空き時間を確認してください。

【ご予約方法】
リンク先より予約希望スタジオを選んで予約をしてください。
初回ご予約には無料会員登録が必要です。
次回以降のご予約、変更、お支払い確認などはマイページから行っていただけます。

※ご予約時の先払いとなります。
※退出時は原状回復をお願いいたします。
※キャンセル料
 6日前まで 無料
 5日~2日前 50%
 前日~当日 100%
※利用日5日前よりご自身でキャンセルはできませんので、マイページ内のメッセージにてお問い合わせください。

その他利用規約関してはこちらをご確認ください。

Drawer Title
同様の製品